土地 練馬区大泉学園町8丁目
所在地
練馬区大泉学園町8丁目
3,280万円
31.65坪
練馬大泉学園北郵便局まで徒歩8分(570m)
スギ薬局大泉学園店まで徒歩19分(1460m)
サミットストア大泉学園店まで徒歩16分(1220m)
ヤマダデンキ テックランド大泉学園店家電館まで徒歩19分(1470m)
物件概要
- 交通
-
東武東上線 和光市駅 まで 徒歩35分
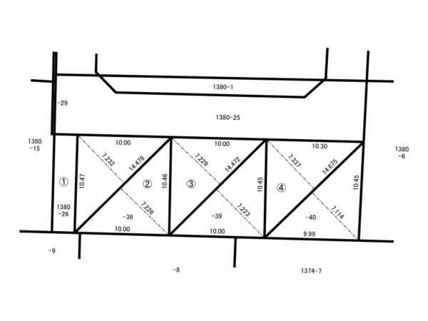
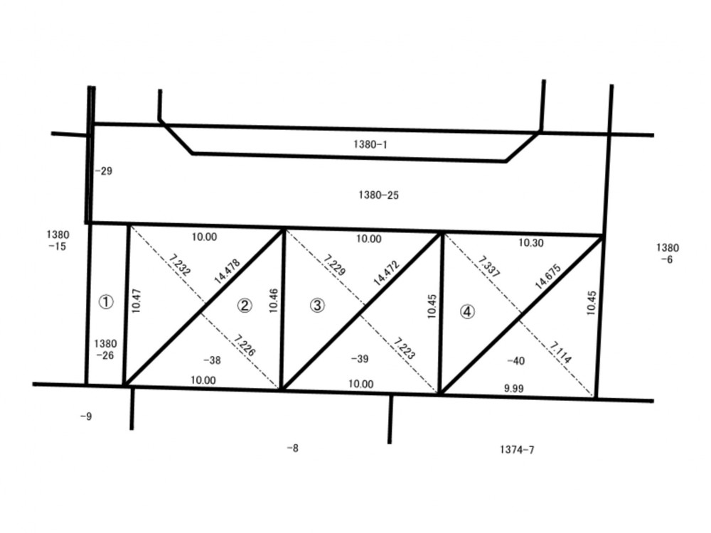
- 接道状況
- 北東側 公道4.5m 間口約10m
- 土地面積
- 公簿 104.66㎡ (31.65坪)
- 建ぺい率
- 40%
- 容積率
- 100%
- 土地権利
- セットバック
- 無し
- 小学校区
- 大泉学園桜 ( 1090m )
- 中学校区
- 大泉学園桜 ( 1150m )
- 私道負担
- 無
- 建築条件
- ー
- 地目
- 宅地
- 現況
- 上物有
- 引渡時期
- 相談
- 上水道
- 公共
- 下水道
- 公共
- ガス
- 都市ガス
- 都市計画
- 市街化区域
- 用途地域
- 1種低層
- 設備・条件
- 備考
- 取引態様
- 仲介

